Bauplätze
Wohnbauplätze
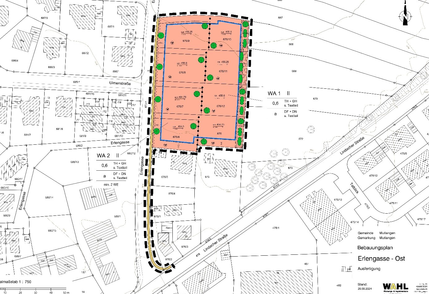
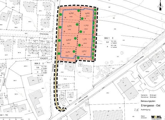
Vergabe von fünf Wohnbauplätzen im Baugebiet „Erlengasse-Ost“
Die Gemeinde Mutlangen hat fünf Wohnbauplätze im Baugebiet Erlengasse-Ost zu vergeben.
Größe und Preis der Bauplätze
Die Grundstücksgrößen liegen zwischen 533 m² und 681 m². Der Preis für die einzelnen Bauplätze einschließlich Pauschalen kann den Kurzübersichten (Exposés) entnommen werden.
Vergabeverfahren
Die Vergabe erfolgt auf Grundlage der vom Gemeinderat am 25.03.2025 beschlossenen Vergaberichtlinien im Rahmen eines mehrstufigen, transparenten Verfahrens. Berücksichtigt werden dabei soziale, persönliche sowie ortsbezogene Kriterien, die nach einem Punktesystem bewertet werden. Maßgeblicher Zeitpunkt für die Bewertung der Vergabekriterien ist der 30.11.2025 (Stichtag). Die Rangfolge der Bewerber richtet sich nach der erreichten Punktzahl. Bei Punktgleichheit entscheidet das Los.
Ablauf der Vergabe
Bewerbung einreichen – per E-Mail an bauplatz@mutlangen.de oder direkt im Rathaus
(Hauptstraße 22, 73557 Mutlangen).
Prüfung der Unterlagen – durch die Gemeindeverwaltung und Einordnung in eine Rangliste auf Basis der erzielten Bewertungspunkte.
Bauplatzauswahl – die Bewerber mit den höchsten Punktzahlen wählen entsprechend ihrer Platzierung Bauplätze aus. Je nach Rang sind mehrere Prioritäten anzugeben.
Zuteilung & Kaufabsicht – Die ausgewählten Bewerber erhalten eine vorläufige Zuteilung und müssen innerhalb der Frist ihre verbindliche Kaufabsicht erklären – andernfalls verfällt der Anspruch.
Erforderliche Nachweise:
Finanzierungsnachweis eines deutschen Kreditinstituts in Höhe von mindestens 700.000 Euro (von allen Bewerbern) Bei auswärtigen Bewerbern eine erweiterte Meldebescheinigung mit allen Familienangehörigen (nicht älter als 10 Wochen zum Ablauf der Bewerbungsfrist) Schriftliche Erklärung für Paare in eheähnlicher Lebensgemeinschaft Ärztliche Bescheinigung bei bestehender Schwangerschaft ab der 16. Schwangerschaftswoche Bescheinigung des Jugendamts bei dauerhafter Aufnahme von Pflegekindern im Haushalt Bescheinigung des Arbeitgebers bzw. bei Selbständigen des Finanzamts bei Vorliegen einer mindestens dreijährigen Haupterwerbstätigkeit in Mutlangen
Bewerbung
Die Bewerbungsfrist endet am 30.11.2025. Die vollständigen Bewerbungsunterlagen müssen bis spätestens 30.11.2025 per E-Mail an bauplatz@mutlangen.de oder direkt im Rathaus (Hauptstraße 22, 73557 Mutlangen) eingegangen sein. Das Ende der Bewerbungsfrist ist der Stichtag.
Bitte beachten Sie, dass nur fristgerecht eingereichte und vollständige Bewerbungen berücksichtigt werden können. Unvollständige oder nach Ablauf der Bewerbungsfrist eingehende Bewerbungen können nicht mehr berücksichtigt werden.
Kontakt & Rückfragen
Gemeindeverwaltung Mutlangen
Hauptstraße 22, 73557 Mutlangen
Herrn Siedle
Telefon: 07171 703-26
E-Mail: bauplatz@mutlangen.de
Folgende Dokumente stehen hier zum Download bereit:
Infos zu den Bauplätzen: Kurzübersicht der Bauplätze (Exposés) (683,5 KB)
Lageplan Bebauungsplan Erlengasse-Ost (415,6 KB)
Textteil Bebauungsplan Erlengasse-Ost (291,4 KB)
Infos zum Bewerbungsverfahren: Bauplatzvergabekriterien (4,211 MB)
Checkliste für Ihre Bauplatzbewerbung (436,3 KB)
Bewerberformular - Angaben zum Bewerber (429,6 KB)
Bewerberformular mit Punktewertung (18,2 KB)
Formular Eheähnliche Gemeinschaft (448,8 KB)
Datenschutzerklärung zur Vergabe von Wohnbauplätzen (461,6 KB)
Gewerbebauplätze
Die Gemeinde Mutlangen kann derzeit keine freien Gewerbebauplätze anbieten. Die beiden Gewerbegebiet „Breite-Nord“ und Wasserstall-Ost“ sind ausverkauft.
Aktuell ist auch keine neues Gewerbegebiet geplant, so dass in Mutlangen zumindest mittelfristig keine gewerblich nutzbaren Bauplätze angeboten werden können.
